APPARTEMENT T3 EN REZ-DE-JARDIN AVEC GARAGE
L'avis de votre agence locale :
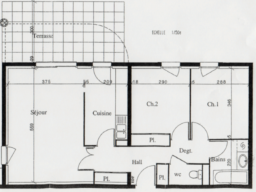
Très lumineux pour un rez-de-jardin et bénéficiant de charges modérées (90€/mois), cet appartement séduit par un agencement optimal avec une séparation claire entre l'espace jour et l'espace nuit, une vaste terrasse couverte, sans parler de son jardin d'environ 80m², et de nombreuses annexes. Autant d'atouts qui en font un investissement de qualité.
Il nécessitera quelques travaux pour exploiter pleinement tout son potentiel.
Vous trouverez le plan de l'appartement parmi les photos pour mieux apprécier les perspectives d'aménagement !
Vendu avec une cave, une place de parking privée et un garage avec de la hauteur !
Contactez-nous pour en savoir plus et prendre rendez-vous.



